DISCONTINUED MODEL
For new designs, we recommend the improved e-chain® Series E2 tubes, R68 new
Series R68 is available from stock in limited numbers. Product support and storage are limited as of 2012. For questions, please refer to your igus® contact person. Thanks for your understanding
Series R68 new - Tube, openable along the outer radius
Here you can configure your e-chain system® individually. All entries and changes are taking over to the part list which is situated at the end of the page.
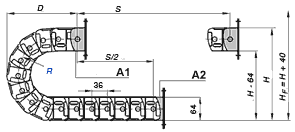
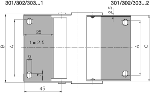
Series R68 - Tube, openable along the outer radius
1. Fully enclosed - very good protection for cables and hoses, even against hot swarf
2. Small pitch for quiet, smooth running
3. Lids removable along the outer radius
For E2 R Series R68 new Available inner widths Bi: 75 to 175 mm
Available bend radii R: 100 to 300 mm
Pitch: 36 mm per link = 28 links/m